
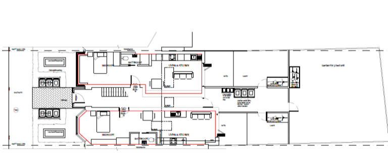
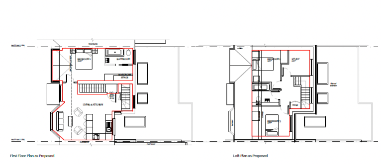
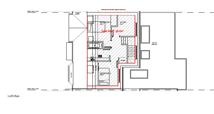
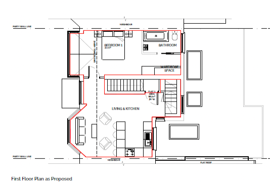
We provided strategic, procedural and planning advice to the client to obtain permission on appeal for the conversion of a 4-bedroom house to 3 flats – two studio apartments and a first and second-floor duplex with 3 bedrooms, all with direct access to a rear garden. Permission also included landscaping and parking improvements to the front forecourt.
A similar proposal for the same dwelling mix had been rejected previously on appeal and we worked with the clients on a risk-sharing fee arrangement to address the earlier Inspector’s concerns. The proposals were unanimously rejected by Planning Committee on spurious grounds, against the recommendation in support from planning officers; the appeal Inspector agreed with us that the Committee had acted unreasonably and awarded full costs in the appeal against the Council.




Client Name:
No.12 Investments Ltd
Project Location:
Harrow, London
Sector:
Residential Conversion and Extensions
Local Authority:
London Borough of Harrow
Service Provided:
Full Planning Permission and Planning Appeal